Bâtiments techniques et shelters, Vallée de l’Arve

Faucigny, Haute-Savoie

2026 – 2030

Modernisation de la ligne de la Vallée de l’Avre, remplacement des bâtiments techniques de gestion des voies

  • Montant des travaux : 10 M€
  • Maîtrise d’ouvrage : SNCF Réseau
  • Maîtrise d’œuvre : Spielmann & Chirino Architectures, SmartRail, Tractebel

L’opération s’inscrit dans le cadre du projet de modernisation de la signalisation sur la Vallée de l’Arve (74).

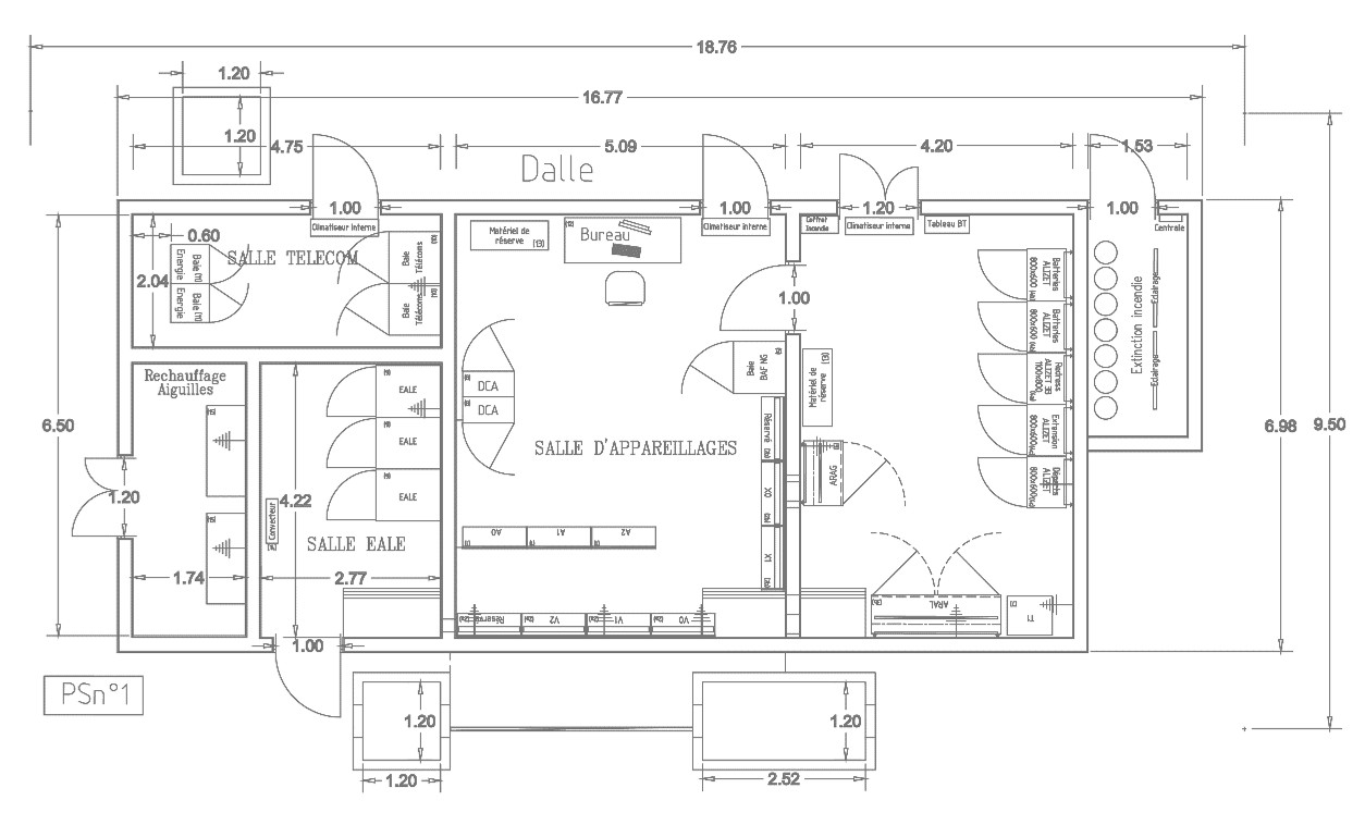
Notre mission concerne la maîtrise d’œuvre relative à la conception et au suivi de construction de bâtiments techniques et shelters préfabriqués constituant les locaux techniques Signalisation / Télécom / EALE de la ligne, et à la démolition de bâtiments pour libérer des emprises nécessaires aux travaux.

Le périmètre de l’opération : les sections de lignes 895.000 (entre La-Roche-sur-Foron et Saint-Gervais) et 897.000 (entre La Roche-sur-Foron et St-Laurent).

Pour les 11 bâtiments de type « Poste » nécessitant une grande surface (environ 100m²), une construction « classique » en dur a été retenue.  La plupart de ces bâtiments, à des endroits stratégiques, accueilleront des installations mutualisées Alimentation, Signalisation, Télécom, EALE.

Pour les installations nécessitant une surface modérée au niveau des PN, une solution de type shelters préfabriqués a été privilégiée.

Afin de libérer des emprises nécessaires pour le projet, plusieurs démolitions de bâtiments sont au programme.

Notre mission a été de définir le parti architectural de la réhabilitation des immeubles. Il s’agit de modifier, reconfigurer et agrandir les bâtiments afin de permettre un meilleur fonctionnement et munir chaque bâtiment d’espaces nécessaires en conséquence.

Un travail sur les aménagements des espaces et la reprise des volumétries et façades est nécessaire. Nous assurons également le montage des dossiers permettant le permis de construire.

Plus…